Creating a space that effectively serves employees and customers while ensuring optimal operation and brand recognition is essential to dealership success. Working with a design partner who understands how to design environments that support your goals and enhance experiences is key.
As dealership design experts across the nation, ISG takes a client-focused approach to merge form with function and elevate each brand. More than designing a good-looking building, this approach is backed by an experienced team that understands the unique operational needs, brand requirements, and regional nuances that make each location successful.
With extensive experience supporting equipment and agricultural brands like Kubota and John Deere, ISG has learned what it takes to design dealerships that truly work. Here are five ways we lead the way:
Every dealership has its own mix of brand standards, site conditions, and customer expectations. Our team understands how to maintain consistency across locations while tailoring the design to reflect regional climate and market needs. Whether it’s a tight urban lot or a rural property, we tailor our approach while staying true to brand identity. ISG has helped Kubota maintain consistent signage, finishes, and layouts across states, while adapting to local needs—like adding shaded outdoor areas in Texas and heated entryways in Minnesota to suit climate and customer expectations.

Designing dealerships across states requires more than design skill. It demands a deep understanding of building codes, permitting requirements, and environmental factors. To accompany the diverse needs, we have built a process that anticipates the variables, so our clients don’t have to. We coordinate closely with local jurisdictions and leverage our in-house civil and environmental experts, allowing projects to move smoothly in the diverse markets. Local conditions might vary, but our process remains the same.
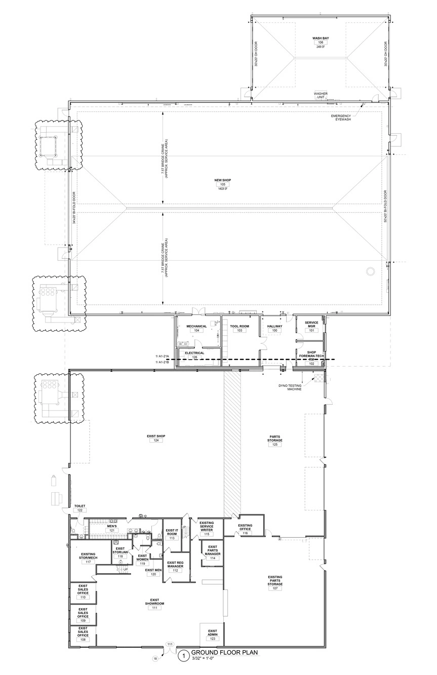
_webfull.webp)
Our multi-disciplinary approach is a game-changer—especially for dealerships where quick turnarounds and seamless coordination are essential. With architecture, engineering, planning, and environmental experts all under one roof, we streamline the entire design process. This integrated approach allows us to identify and solve potential challenges early—moving projects forward efficiently and keeping schedules on track.

We don’t just design for looks—we design for how the dealership operates daily. From sales flow to service bays, we have learned what makes these spaces efficient for staff and comfortable for customers. For example, our team creates clear customer paths and intuitive layouts that support staff efficiency while making it easy for visitors to find what they need. We focus on designing with real-world use in mind—not just floor plans on paper.

Our team is more than designers—we are your long-term partners for success. Our commitment remains from concept design through construction. We offer construction-phase services like owner representation, construction observation, and warranty coordination to ensure your space opens on time and performs as intended. Long-term relationships with clients across the equipment and agriculture market are built on this full-service mindset.

Dealership design is more than just aesthetics. It’s about designing a space that works for your brand, your employees, and your customers. Through our partnership mentality and collaborative process, ISG creates spaces that economically and effectively showcases services and products beyond expectations.
Ready to design a space that reflects your brand and enhances customer experience? Explore how we have helped our partners with our brand retail design and construction services and discover how we work together to build something that works.